Wszystkie parametry
| Powierzchnia mieszkalna | 144.68 m2 | 
| Pow. zabudowy | 228.87 m2 | 
| Liczba pokoi | 4 | 
| Liczba łazienek | 2 | 
| Liczba sypialni | 3 | 
| Ogrzewanie | gazowe | 
| Poddasze | strych | 
| Wysokość parteru | 2.88 m | 
| Wysokość poddasza | 2.35 m | 
| Dach | wielospadowy | 
| Rodzaj zabudowy | wolnostojący | 
| Pokrycie dachu | blachodachówka, dachówka | 
| Kąt nachylenia dachu | 25° | 
| Powierzchnia dachu | 360.94 m2 | 
| Powierzchnia całkowita | 228.87 m2 | 
| Min. wymiary działki | 21.53 m / 28 m | 
| Wysokość budynku | 6.99 m | 
| Szerokość zabudowy | 13.53 m | 
| Długość zabudowy | 20.00 m | 
| Podpiwniczenie (z piwnicą) | Nie | 
| Kondygnacje | parterowy | 
| Technologia | murowany | 
| Garaż | dwustanowiskowy | 
| Instalacje | elektryczne, gazowe, sanitarne, C.O | 
| Rodzaj wentylacji | grawitacyjna | 
| Dodatkowe informacje | kominek, pomieszczenie gospodarcze, spiżarnia, pralnia | 
Rzut sytuacyjny
 
                            zapytaj o projekt
Masz pytania odnośnie projektu Ka23 war.2 T L?
Napisz do nas, chętnie pomożemy Ci wybrać idealny projekt domu
Napisz do nasWarianty projektu
Dodatki
| Dziennik budowy | 1,- | 
| Tablica budowy | 1,- | 
| Projekt wentylacji mechanicznej | 1200,- | 
| Projekt pompy ciepła | 800,- | 
| Kotłownia na paliwo stałe | 550,- | 
| Pakiet szamba szczelnego | 300,- | 
| Przydomowa oczyszczalnia ścieków | 500,- | 
| Kosztorys inwestorski | 550,- | 
| Dodatkowy papierowy egzemplarz projektu | 600,- | 
Opis projektu
                                Gotowy projekt domu Ka23 war.2 T to nowoczesny dom parterowy z dwustanowiskowym garażem oraz pomieszczeniem gospodarczym. Projekt domu wykonany w technologii murowanej, gwarantuje trwałość konstrukcji na lata. Elewacja, została wykończona elegancką kamienną okładziną, która idealnie współgra z wielospadowym dachem.
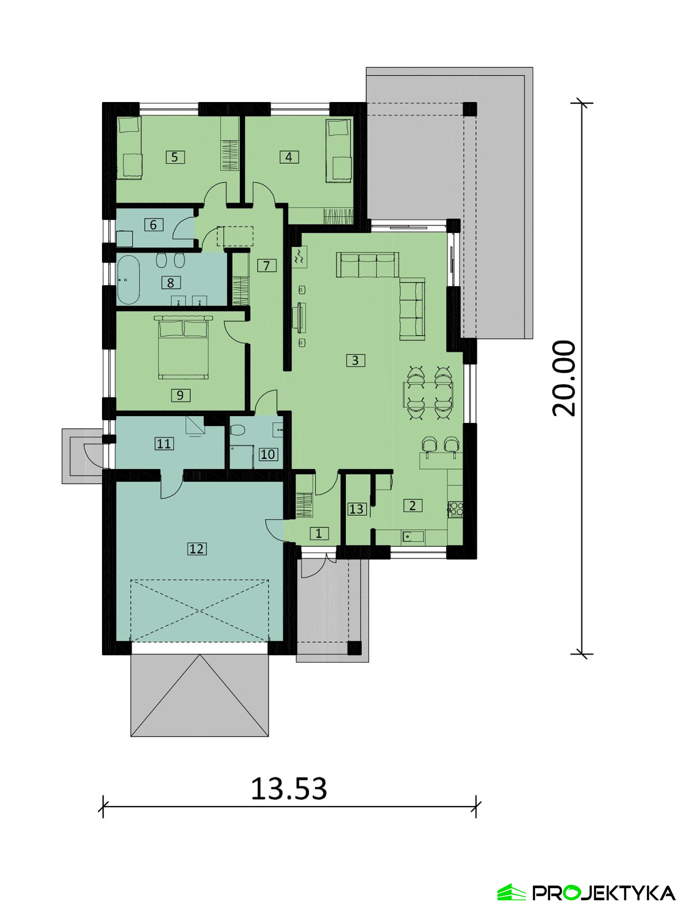
Gotowy projekt domu parterowego przewiduje ok. 145 m2 powierzchni mieszkalnej, na której znajdziecie Państwo 2 łazienki oraz 4 pokoje, w tym 3 sypialnie. Do domu prowadzi zadaszone wejście, które poprzez wiatrołap wprowadzi nas do części dziennej. Gotowy projekt domu w strefie gościnnej składa się z przestronnej otwartej kuchni ze spiżarnią oraz jadalnią. Dodatkowo, optymalnie oświetlony salon posiada bezpośrednie wyjście na taras, który urozmaici ciepłe letnie dni.
Strefa nocna w gotowy projekt domu parterowego została praktycznie oddzielona od części dziennej, zapewniając maksimum prywatności. Znajdziemy w niej dużą sypialnię dla rodziców oraz dwie mniejsze dla dzieci lub gości. Dodatkowo umieszczenie w niej dużej łazienki dla mieszkańców oraz pralni, dodaje funkcjonalnego charakteru.
                        Gotowy projekt domu parterowego przewiduje ok. 145 m2 powierzchni mieszkalnej, na której znajdziecie Państwo 2 łazienki oraz 4 pokoje, w tym 3 sypialnie. Do domu prowadzi zadaszone wejście, które poprzez wiatrołap wprowadzi nas do części dziennej. Gotowy projekt domu w strefie gościnnej składa się z przestronnej otwartej kuchni ze spiżarnią oraz jadalnią. Dodatkowo, optymalnie oświetlony salon posiada bezpośrednie wyjście na taras, który urozmaici ciepłe letnie dni.
Strefa nocna w gotowy projekt domu parterowego została praktycznie oddzielona od części dziennej, zapewniając maksimum prywatności. Znajdziemy w niej dużą sypialnię dla rodziców oraz dwie mniejsze dla dzieci lub gości. Dodatkowo umieszczenie w niej dużej łazienki dla mieszkańców oraz pralni, dodaje funkcjonalnego charakteru.
 
                    
 
                             
                             
                             
                             
                             
                             
                             
                             
                             
                             
                             
                             
                             
                             
                             
                             
                             
                                     
                                         
                                         
                                         
                                         
                                         
                                         
                                         
                                         
                                         
                                         
                                         
                                         
                                         
                                         
                                         
                                         
                                         
                                         
                                    












