Ka23 war.4 M L

Ka23 war.4 M jest udoskonaloną wersją najpopularniejszego projektu na dom parterowy. To gotowy projekt domu, który z pewnością sprosta wymaganiom współczesnej rodziny i wpasuje się w każde otoczenie. W tej wersji wyrównano ścianę od salonu, a także dołożono schody na poddasze, dzięki czemu dom zyskuje na rozmiarach. Obecna powierzchnia użytkowa budynku wynosi 140.14 m2, a po adaptacji poddasza można zyskać dodatkowe metry. Ten projekt cechuje przestronność połączona z funkcjonalnością... Pełny opis

Ka23 war.4 M L

Oczekiwanie na projekt: 5 dni

4799,- 5199,-

Najniższa cena z 30 dni przed obniżką: 4799

kup projekt
ulubione
porównaj
drukuj
Pow. mieszkalna 140.14 m2
Pow. zabudowy 224.08 m2
Wysokość budynku 6.86 m
Główny kąt dachu 25°
Min. wymiary działki 21.09 m / 28 m
Kondygnacje parterowy z poddaszem do adaptacji
Technologia murowany
Garaż dwustanowiskowy

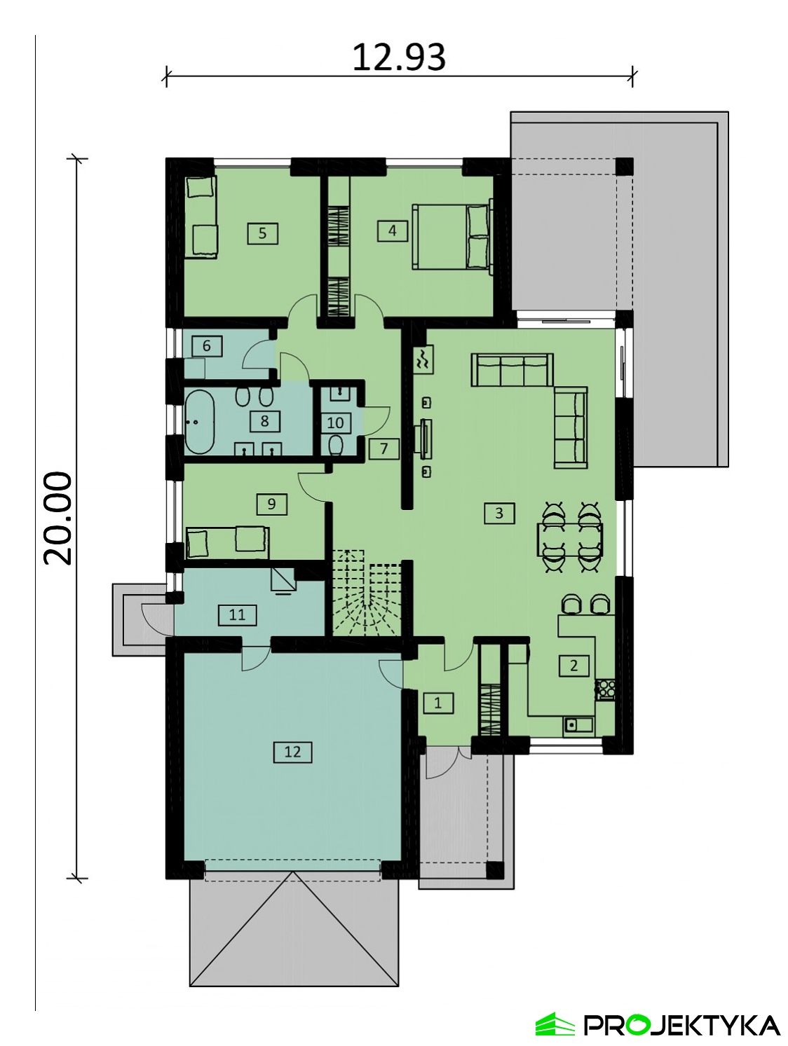
Rzuty projektu

Rzut

rzut-karta-domu
LpNazwa pomieszczeniaPow. użytkowa
1 wiatrołap 6,25 m2
2 kuchnia 8,40 m2
3 salon + jadalnia 49,16 m2
4 sypialnia 18,72 m2
5 sypialnia 15,48 m2
6 pralnia 3,68 m2
7 korytarz + schody 17,79 m2
8 łazienka 7,34 m2
9 sypialnia 11,12 m2
10 WC 2,20 m2
Pow. użytkowa 140,14 m2
11 pom. gospodarcze 7,73 m2
12 garaż 35,80 m2
Pow. razem 183,67 m2

 

LpNazwa pomieszczeniaPow. użytkowa
1 wiatrołap 6,25 m2
2 kuchnia 8,40 m2
3 salon + jadalnia 49,16 m2
4 sypialnia 18,72 m2
5 sypialnia 15,48 m2
6 pralnia 3,68 m2
7 korytarz + schody 17,79 m2
8 łazienka 7,34 m2
9 sypialnia 11,12 m2
10 WC 2,20 m2
Pow. użytkowa 140,14 m2
11 pom. gospodarcze 7,73 m2
12 garaż 35,80 m2
Pow. razem 183,67 m2

 

Wszystkie parametry

Powierzchnia mieszkalna 140.14 m2
Pow. zabudowy 224.08 m2
Liczba pokoi 4
Liczba łazienek 2
Liczba sypialni 3
Ogrzewanie gazowe
Poddasze do adaptacji
Wysokość parteru 2.87 m
Wysokość poddasza 2.70 m
Dach wielospadowy
Rodzaj zabudowy wolnostojący
Pokrycie dachu blachodachówka, dachówka
Kąt nachylenia dachu 25°
Powierzchnia dachu 349.00 m2
Powierzchnia całkowita 224.08 m2
Min. wymiary działki 21.09 m / 28 m
Wysokość budynku 6.86 m
Szerokość zabudowy 12.93 m
Długość zabudowy 20.00 m
Podpiwniczenie (z piwnicą) Nie
Kondygnacje parterowy z poddaszem do adaptacji
Technologia murowany
Garaż dwustanowiskowy
Instalacje elektryczne, gazowe, sanitarne, C.O
Rodzaj wentylacji grawitacyjna
Dodatkowe informacje kominek, pomieszczenie gospodarcze, pralnia

Elewacje

Rzut sytuacyjny

Fundamenty: ławy fundamentowe, stopy fundamentowe
Ściany zewnętrzne: gazobeton +20 cm styropianu
Strop: żelbetowy monolityczny
Elewacje: tynk cienkowarstwowy, okładzina drewniana
Ka23 war.4 M

zapytaj o projekt

Masz pytania odnośnie projektu Ka23 war.4 M L?

Napisz do nas, chętnie pomożemy Ci wybrać idealny projekt domu

Napisz do nas

Warianty projektu

Dodatki

Dziennik budowy 1,-
Tablica budowy 1,-
Projekt wentylacji mechanicznej 1200,-
Projekt pompy ciepła 800,-
Kotłownia na paliwo stałe 550,-
Pakiet szamba szczelnego 300,-
Przydomowa oczyszczalnia ścieków 500,-
Kosztorys inwestorski 550,-
Dodatkowy papierowy egzemplarz projektu 600,-

Opis projektu

Ka23 war.4 M jest udoskonaloną wersją najpopularniejszego projektu na dom parterowy. To gotowy projekt domu, który z pewnością sprosta wymaganiom współczesnej rodziny i wpasuje się w każde otoczenie. W tej wersji wyrównano ścianę od salonu, a także dołożono schody na poddasze, dzięki czemu dom zyskuje na rozmiarach. Obecna powierzchnia użytkowa budynku wynosi 140.14 m2, a po adaptacji poddasza można zyskać dodatkowe metry. Ten projekt cechuje przestronność połączona z funkcjonalnością. Pod wielospadowym dachem skrywa się duży garaż z pomieszczeniem gospodarczym, do którego wejście znajduje się z boku domu. Drzwi wejściowe prosto z wiatrołapu prowadzą do ogromnej strefy dziennej – salonu z jadalnią połączonych z wygodnym aneksem kuchennym na planie kwadratu. Z salonu można wyjść bezpośrednio na duży taras. Na korytarzu znajdują się schody, a także niewielka sypialnia, łazienka, WC i pralnia. W tylnej części domu zlokalizowano dwie duże sypialnie. Ten projekt domu jednorodzinnego zakłada również ogrzewanie kominkowe, co czyni go wyjątkowo przytulnym i funkcjonalnym. 

zapytaj o projekt

Masz pytania odnośnie projektu Ka23 war.4 M L?

Napisz do nas, chętnie pomożemy Ci wybrać idealny projekt domu

Napisz do nas
c4ca4238a0b923820dcc509a6f75849b